パレ・ソレイユ世田谷二丁目 東京都世田谷区世田谷2丁目|6,499万円の中古マンション|分譲住宅や新築物件|ME不動産城北
| 価格 | 6,499万円値下がり ![]() |
||||
|---|---|---|---|---|---|
| 所在地 | 東京都世田谷区世田谷2丁目
この地域周辺の物件を見る |
専有面積 | 45.65m2 | 築年月 | 2004年2月築 |
| 交通 |
東急世田谷線 上町 徒歩8分
東急田園都市線 桜新町 徒歩16分 |
管理費等 | 7,900円 | 修繕積立金 | 7,300円 | 所在階/階数 | 2階/地上6階建 | バルコニー面積 | 3.75m² |
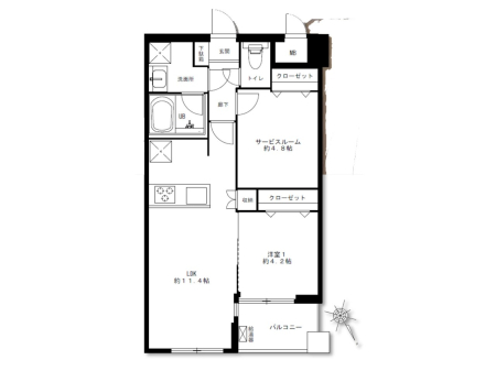
| 間取り | 1SLDK (LDK11.4/洋室4.2/S4.8) | ||||
| 特徴 |
|
|---|---|
| セールスコメント |
| 採光面 | 北東 | 取引態様 | 仲介 |
|---|---|---|---|
| 現況 | 空家 | 引渡し | 即時 |
| 総戸数 | 33戸 | 構造 | RC造 |
| テラス面積 | - | 専用庭面積 | - |
| 駐車場 | 有:22,000円/月 | 駐輪場 | - |
| 建物権利 | - | 土地権利 | 所有権 |
| 用途地域 | 近隣商業地域 - - | 管理態様 | 管理形態:委託(巡回) 管理組合:あり 管理会社:ロイヤル・ビル管理株式会社 |
| 情報更新日 | 2026年05月25日 | 次回更新日 | 2026年06月08日 |
| 小学校区 | () |
中学校区 | () |
|---|
| 価格 | 万円 | ||
|---|---|---|---|
| 年利率 | % |
||
| ボーナス払い | 返済年数 | ||
| 頭金 | 直接入力する | 万円 | |

毎月のご返済額 |
ボーナス(×年2回) |
物件価格6,499万円 |
![]() |
![]() |
世田谷区世田谷2丁目
6499万円〜6699万円 |
マイホーム探しには、生活費、教育費、老後費、人生の三大支出も加味した、将来の家計を考慮することが大切です。弊社では住宅FPアドバイザーが、お客様の将来設計を見据えたコンサルティングを実施します。