新座市畑中2丁目 第28 新築一戸建て 全9棟 埼玉県新座市畑中2丁目|3,480万円の新築一戸建て|ME不動産城北
| 価格 | 3,480万円値下がり ![]() |
||||
|---|---|---|---|---|---|
| 所在地 | 埼玉県新座市畑中2丁目
この地域周辺の物件を見る |
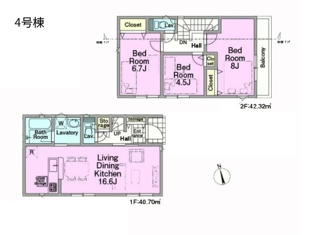
土地面積 | 110.7m² (33.48坪) | 建物面積 | 83.02m2 |
| 築年月 | 2026年2月築 | 間取り | 3LDK (-) | ||
| 交通 |
東武東上線 朝霞台 バス16分 東福寺前 停歩3分
JR武蔵野線 新座 徒歩43分 |
||||
| 特徴 |
|
|---|---|
| セールスコメント |
| 採光面 | - | 構造/階数 | 木造/地上2階建 |
|---|---|---|---|
| 建ぺい率 | 60(%) | 容積率 | 80(%) |
| 駐車場 | 有 | 現況/引渡し | 空家/即時 |
| 土地権利 | 所有権 | 私道負担面積 | - |
| 接道状況 | 接道: 東 公道 道路幅: 4.5m 接道: 南 公道 道路幅: 4.8m |
用途地域 |
第一種低層住居専用地域
|
| セットバック | なし | 法令上の制限 | 埋蔵文化材包蔵地域 ゴミ集積所有分:1/9ずつ有 |
| 地目 | 宅地 | 地勢 | 傾斜地 |
| 建築確認番号 | 第25UDI1W建00942号 | 都市計画 | 市街化区域 |
| 取引態様 | 仲介 | ||
| 情報更新日 | 2026年04月16日 | 次回更新日 | 2026年04月30日 |
| 小学校区 | 新座市立第四小学校 (埼玉県新座市) この学区の他の物件を見る |
中学校区 | 第三中学校 (埼玉県新座市) この学区の他の物件を見る |
|---|
| 価格 | 万円 | ||
|---|---|---|---|
| 年利率 | % |
||
| ボーナス払い | 返済年数 | ||
| 頭金 | 直接入力する | 万円 | |

毎月のご返済額 |
ボーナス(×年2回) |
物件価格3,480万円 |
![]() |
![]() |
新座市畑中2丁目
2980万円〜3480万円 |
マイホーム探しには、生活費、教育費、老後費、人生の三大支出も加味した、将来の家計を考慮することが大切です。弊社では住宅FPアドバイザーが、お客様の将来設計を見据えたコンサルティングを実施します。