戸田公園第五ローヤルコーポ 埼玉県戸田市本町1丁目|3,780万円の中古マンション|分譲住宅や新築物件|ME不動産城北
| 価格 | 3,780万円 ![]() |
||||
|---|---|---|---|---|---|
| 所在地 | 埼玉県戸田市本町1丁目
この地域周辺の物件を見る |
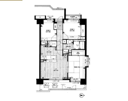
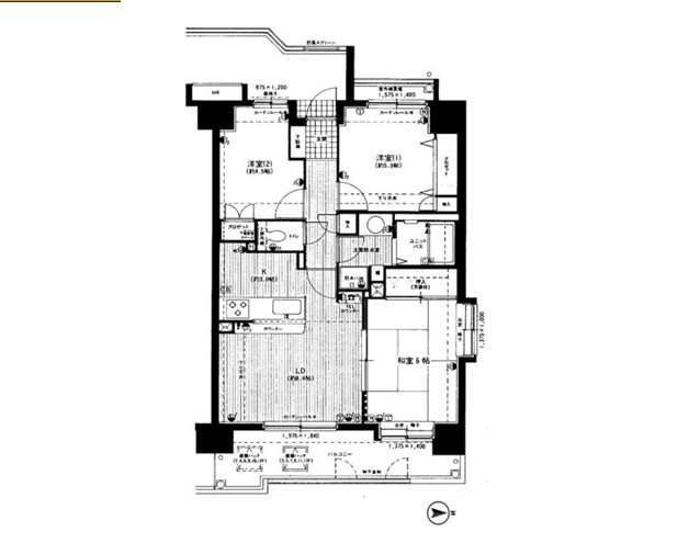
専有面積 | 57.2m2 | 築年月 | 1996年11月築 |
| 交通 |
JR埼京線 戸田公園 徒歩7分
JR埼京線 戸田 徒歩15分 |
管理費等 | 13,310円 | 修繕積立金 | 11,820円 | 所在階/階数 | 4階/地上13階建 | バルコニー面積 | 10.6m² |
| 間取り | 3LDK (-) | ||||
| 特徴 |
|
|---|---|
| セールスコメント |
| 採光面 | 東 | 取引態様 | 仲介 |
|---|---|---|---|
| 現況 | 空家 | 引渡し | 即時 |
| 総戸数 | 48戸 | 構造 | SRC造 |
| テラス面積 | - | 専用庭面積 | - |
| 駐車場 | 有:10,000円/月 | 駐輪場 | - |
| 建物権利 | - | 土地権利 | 所有権 |
| 用途地域 | 商業地域 - - | 管理態様 | 管理形態:委託(通勤) 管理組合:あり 管理会社:- |
| 情報更新日 | 2025年12月13日 | 次回更新日 | 2025年12月27日 |
| 小学校区 | 戸田市立戸田第一小学校 (埼玉県戸田市) この学区の他の物件を見る |
中学校区 | 戸田中学校 (埼玉県戸田市) この学区の他の物件を見る |
|---|
| 価格 | 万円 | ||
|---|---|---|---|
| 年利率 | % |
||
| ボーナス払い | 返済年数 | ||
| 頭金 | 直接入力する | 万円 | |

毎月のご返済額 |
ボーナス(×年2回) |
物件価格3,780万円 |
マイホーム探しには、生活費、教育費、老後費、人生の三大支出も加味した、将来の家計を考慮することが大切です。弊社では住宅FPアドバイザーが、お客様の将来設計を見据えたコンサルティングを実施します。