足立区花畑2丁目 新築一戸建て 全1棟 東京都足立区花畑2丁目|5,690万円の新築一戸建て|ME不動産城北
| 価格 | 5,690万円 ![]() |
||||
|---|---|---|---|---|---|
| 所在地 | 東京都足立区花畑2丁目
この地域周辺の物件を見る |
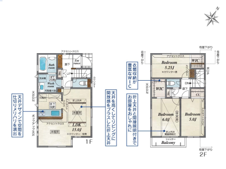
土地面積 | 112.61m² (34.06坪) | 建物面積 | 98.74m2 |
| 築年月 | 2026年5月築 | 間取り | 4LDK (-) | ||
| 交通 |
つくばエクスプレス 六町 バス15分 樫の木公園前 停歩1分
東武伊勢崎線 谷塚 徒歩32分 |
||||
| 特徴 |
|
|---|---|
| セールスコメント | 防火地域 第三種高度地区 日影規制:5h-3h/4m 宅地造成等工事規制区域 (花畑北部地区)地区計画 景観法 建ぺい率:角地緩和 |
| 採光面 | - | 構造/階数 | 木造/地上2階建 |
|---|---|---|---|
| 建ぺい率 | 70(%) | 容積率 | 300(%) |
| 駐車場 | 有 | 現況/引渡し | -/2026年6月上旬 |
| 土地権利 | 所有権 | 私道負担面積 | - |
| 接道状況 | 接道: 東 公道 道路幅: 8m 接道: 北 公道 道路幅: 6m |
用途地域 |
第一種住居地域
|
| セットバック | なし | 法令上の制限 | - |
| 地目 | 宅地 | 地勢 | |
| 建築確認番号 | 第HPA-26-00098-1号 | 都市計画 | 市街化区域 |
| 取引態様 | 仲介 | ||
| 情報更新日 | 2026年04月20日 | 次回更新日 | 2026年05月04日 |
| 小学校区 | 足立区立花畑第一小学校 (東京都足立区) この学区の他の物件を見る |
中学校区 | 花畑中学校 (東京都足立区) この学区の他の物件を見る |
|---|
| 価格 | 万円 | ||
|---|---|---|---|
| 年利率 | % |
||
| ボーナス払い | 返済年数 | ||
| 頭金 | 直接入力する | 万円 | |

毎月のご返済額 |
ボーナス(×年2回) |
物件価格5,690万円 |
マイホーム探しには、生活費、教育費、老後費、人生の三大支出も加味した、将来の家計を考慮することが大切です。弊社では住宅FPアドバイザーが、お客様の将来設計を見据えたコンサルティングを実施します。