足立区南花畑4丁目の分譲住宅一覧|東京・埼玉の不動産のことならME不動産城北へ

TEL.03-6905-9710

営業時間9:00〜18:30

TOPページ >
物件検索 >
分譲住宅特集一覧 >
足立区南花畑4丁目の分譲住宅特集一覧
2件中1〜2件を表示
  • 1
新築一戸建て
価格 5,090万円 
所在地 足立区南花畑4丁目
交通 東武伊勢崎線 竹ノ塚駅 バス9分停歩2分
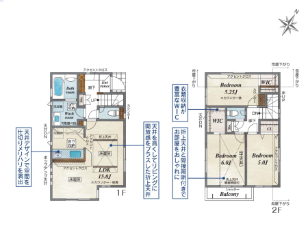
建物面積 77.34m2 土地面積 82.27m2

マイホーム探しには、生活費、教育費、老後費、人生の三大支出も加味した、将来の家計を考慮することが大切です。弊社では住宅FPアドバイザーが、お客様の将来設計を見据えたコンサルティングを実施します。

会員様限定で公開中!

2件中1〜2件を表示
  • 1