清瀬市下宿2丁目 中古一戸建て 東京都清瀬市下宿2丁目|3,490万円の中古一戸建て|ME不動産城北
| 価格 | 3,490万円 ![]() |
||||
|---|---|---|---|---|---|
| 所在地 | 東京都清瀬市下宿2丁目
この地域周辺の物件を見る |
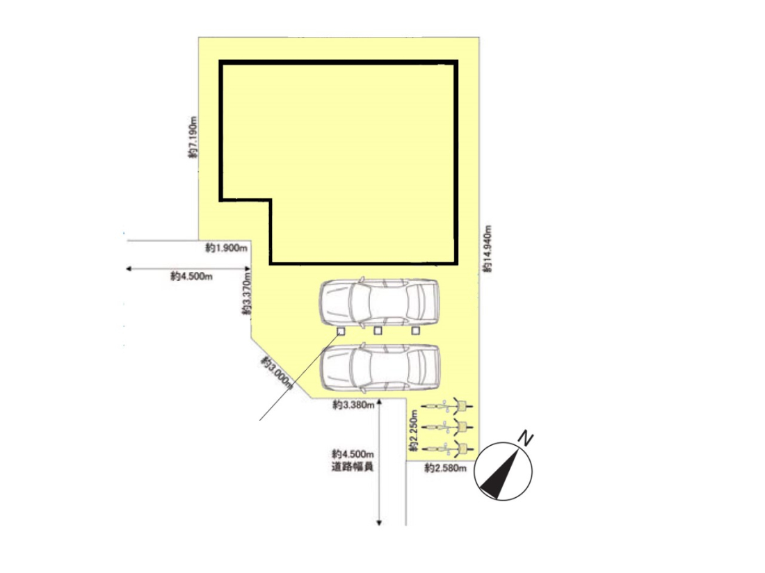
土地面積 | 120m² (36.29坪) | 建物面積 | 103.68m2 |
| 築年月 | 2008年12月築 | 間取り | 4LDK (-) | ||
| 交通 |
西武池袋線 清瀬 バス9分 団地交番前 停歩6分
JR武蔵野線 新座 バス14分 団地交番前 停歩6分 |
||||
| 特徴 |
|
|---|---|
| セールスコメント |
| 採光面 | - | 構造/階数 | 木造/地上2階建 |
|---|---|---|---|
| 建ぺい率 | 50(%) | 容積率 | 100(%) |
| 駐車場 | 有 | 現況/引渡し | 空家/相談 |
| 土地権利 | 所有権 | 私道負担面積 | - |
| 接道状況 | 接道: 南 私道 道路幅: 4.5m | 用途地域 |
第一種低層住居専用地域
|
| セットバック | なし | 法令上の制限 | - |
| 地目 | 宅地 | 地勢 | |
| 建築確認番号 | 都市計画 | 市街化区域 | |
| 取引態様 | 仲介 | ||
| 情報更新日 | 2025年12月15日 | 次回更新日 | 2025年12月29日 |
| 小学校区 | 清瀬市立清明小学校 (東京都清瀬市) この学区の他の物件を見る |
中学校区 | 清瀬第三中学校 (東京都清瀬市) この学区の他の物件を見る |
|---|
| 価格 | 万円 | ||
|---|---|---|---|
| 年利率 | % |
||
| ボーナス払い | 返済年数 | ||
| 頭金 | 直接入力する | 万円 | |

毎月のご返済額 |
ボーナス(×年2回) |
物件価格3,490万円 |
マイホーム探しには、生活費、教育費、老後費、人生の三大支出も加味した、将来の家計を考慮することが大切です。弊社では住宅FPアドバイザーが、お客様の将来設計を見据えたコンサルティングを実施します。