新座市栄5丁目 23−3期 新築一戸建て 全1棟 埼玉県新座市栄5丁目|3,080万円の新築一戸建て|ME不動産城北
| 価格 | 3,080万円 ![]() |
||||
|---|---|---|---|---|---|
| 所在地 | 埼玉県新座市栄5丁目
この地域周辺の物件を見る |
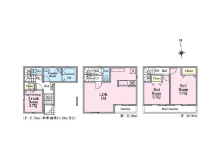
土地面積 | 56.41m² (17.06坪) | 建物面積 | 95.05m2 |
| 築年月 | 2025年11月築 | 間取り | 2LDK (-) | ||
| 交通 |
西武池袋線 大泉学園 バス10分 天沼マーケット 停歩6分
東武東上線 朝霞 徒歩45分 |
||||
| 特徴 |
|
|---|---|
| セールスコメント |
| 採光面 | - | 構造/階数 | 木造/地上3階建 |
|---|---|---|---|
| 建ぺい率 | 60(%) | 容積率 | 160(%) |
| 駐車場 | 有 | 現況/引渡し | 空家/即時 |
| 土地権利 | 所有権 | 私道負担面積 | - |
| 接道状況 | 接道: 南 私道 道路幅: 4m | 用途地域 |
第一種住居地域
|
| セットバック | なし | 法令上の制限 | - |
| 地目 | 山林 | 地勢 | |
| 建築確認番号 | 第SJK-KX245904130号 | 都市計画 | 市街化区域 |
| 取引態様 | 仲介 | ||
| 情報更新日 | 2025年12月13日 | 次回更新日 | 2025年12月27日 |
| 小学校区 | 新座市立池田小学校 (埼玉県新座市) この学区の他の物件を見る |
中学校区 | 第三中学校 (埼玉県新座市) この学区の他の物件を見る |
|---|
| 価格 | 万円 | ||
|---|---|---|---|
| 年利率 | % |
||
| ボーナス払い | 返済年数 | ||
| 頭金 | 直接入力する | 万円 | |

毎月のご返済額 |
ボーナス(×年2回) |
物件価格3,080万円 |
マイホーム探しには、生活費、教育費、老後費、人生の三大支出も加味した、将来の家計を考慮することが大切です。弊社では住宅FPアドバイザーが、お客様の将来設計を見据えたコンサルティングを実施します。