富士見市渡戸1丁目 新築一戸建て 全14棟 埼玉県富士見市渡戸1丁目|3,680万円の新築一戸建て|ME不動産城北
| 価格 | 3,680万円値下がり ![]() |
||||
|---|---|---|---|---|---|
| 所在地 | 埼玉県富士見市渡戸1丁目
この地域周辺の物件を見る |
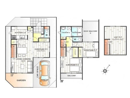
土地面積 | 100.16m² (30.29坪) | 建物面積 | 98.01m2 |
| 築年月 | 2025年11月築 | 間取り | 3LDK (-) | ||
| 交通 |
東武東上線 ふじみ野 徒歩28分
東武東上線 鶴瀬 徒歩27分 |
||||
| 特徴 |
|
|---|---|
| セールスコメント | 景観法 法第22条区域 宅地造成等工事規制区域 日影規制4h-2.5h/1.5m 建ぺい率:角地緩和 『長期優良住宅』駐車2台可☆オール洋室!BELS認定の省エネ住宅で快適新生活 |
| 採光面 | - | 構造/階数 | 木造/地上2階建 |
|---|---|---|---|
| 建ぺい率 | 70(%) | 容積率 | 100(%) |
| 駐車場 | 有 | 現況/引渡し | 空家/即時 |
| 土地権利 | 所有権 | 私道負担面積 | - |
| 接道状況 | 接道: 北 公道 道路幅: 6m 接道: 東 公道 道路幅: 4.2m |
用途地域 |
第一種低層住居専用地域
|
| セットバック | なし | 法令上の制限 | - |
| 地目 | 畑 | 地勢 | |
| 建築確認番号 | 第25UDI1W建05401号 | 都市計画 | 市街化区域 |
| 取引態様 | 仲介 | ||
| 情報更新日 | 2026年01月20日 | 次回更新日 | 2026年02月03日 |
| 小学校区 | 富士見市立勝瀬小学校 (埼玉県富士見市) この学区の他の物件を見る |
中学校区 | 勝瀬中学校 (埼玉県富士見市) この学区の他の物件を見る |
|---|
| 価格 | 万円 | ||
|---|---|---|---|
| 年利率 | % |
||
| ボーナス払い | 返済年数 | ||
| 頭金 | 直接入力する | 万円 | |

毎月のご返済額 |
ボーナス(×年2回) |
物件価格3,680万円 |
![]() |
![]() |
富士見市渡戸1丁目
3280万円〜3980万円 |
マイホーム探しには、生活費、教育費、老後費、人生の三大支出も加味した、将来の家計を考慮することが大切です。弊社では住宅FPアドバイザーが、お客様の将来設計を見据えたコンサルティングを実施します。