朝霞市根岸台4丁目 新築一戸建て 全1棟 埼玉県朝霞市根岸台4丁目|4,780万円の新築一戸建て|ME不動産城北
| 価格 | 4,780万円 ![]() |
||||
|---|---|---|---|---|---|
| 所在地 | 埼玉県朝霞市根岸台4丁目
この地域周辺の物件を見る |
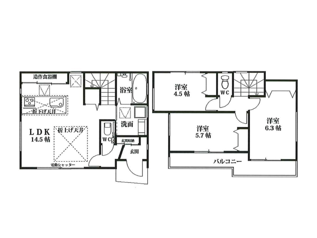
土地面積 | 77.92m² (23.57坪) | 建物面積 | 74.52m2 |
| 築年月 | 2026年7月築 | 間取り | 3LDK (-) | ||
| 交通 |
東武東上線 朝霞 徒歩16分
東武東上線 和光市 徒歩27分 |
||||
| 特徴 |
|
|---|---|
| セールスコメント |
| 採光面 | - | 構造/階数 | 木造/地上2階建 |
|---|---|---|---|
| 建ぺい率 | 60(%) | 容積率 | 100(%) |
| 駐車場 | 有 | 現況/引渡し | -/2026年8月下旬 |
| 土地権利 | 所有権 | 私道負担面積 | あり 77.13m² |
| 接道状況 | 接道: 南 公道 道路幅: 4m 接道: 西 私道 道路幅: 4m |
用途地域 |
第一種低層住居専用地域
|
| セットバック | なし | 法令上の制限 | - |
| 地目 | 宅地 | 地勢 | |
| 建築確認番号 | 第SJK-KX255420270号 | 都市計画 | 市街化区域 |
| 取引態様 | 仲介 | ||
| 情報更新日 | 2026年04月16日 | 次回更新日 | 2026年04月30日 |
| 小学校区 | 朝霞市立朝霞第九小学校 (埼玉県朝霞市) この学区の他の物件を見る |
中学校区 | 朝霞第四中学校 (埼玉県朝霞市) この学区の他の物件を見る |
|---|
| 価格 | 万円 | ||
|---|---|---|---|
| 年利率 | % |
||
| ボーナス払い | 返済年数 | ||
| 頭金 | 直接入力する | 万円 | |

毎月のご返済額 |
ボーナス(×年2回) |
物件価格4,780万円 |
マイホーム探しには、生活費、教育費、老後費、人生の三大支出も加味した、将来の家計を考慮することが大切です。弊社では住宅FPアドバイザーが、お客様の将来設計を見据えたコンサルティングを実施します。